watermarks

17th La Biennale Di Venezia - Egyptian Pavilion

Venice, Italy

Runner up

2019

Within the darkness of the anthropocene age we are living.. There are the watermarks a tiny glimpses of light that is fighting to survive, and to provide a better earth where bio-diversity and humanity can both exist in harmony. Humankind are the actors in an era of accelerated planetary crisis which has recently earned itself a new geological epoch called the anthropocene. Based on the overwhelming evidence that human activity has marked itself as a major force of nature. In this new era we sees unprecedented land degradation, and the loss of arable land at 30 to 35 times the historical rate. Drought and desertification is also on the rise each year, amounting to the loss of 12 million hectares and affects poor communities globally. Of the 8,300 animal breeds known, 8 percent are extinct and 22 percent are at risk of extinction.

Watermarks of survival

Amidst the shadows of the Anthropocene, a new geological epoch marked by unprecedented human impact on our planet, there are faint glimmers of hope. These glimmers represent our collective desire to forge a better Earth, one where biodiversity and humanity coexist in harmony. The Egyptian Pavilion at the Venice Biennale is an exploration of this paradox, where we confront the dire challenges posed by the Anthropocene while celebrating the positive watermarks humanity is leaving on Earth.

The Anthropocene is an era in which humankind has emerged as a dominant force of nature. This epoch bears witness to accelerated planetary crises, including staggering land degradation rates, the loss of arable land at an alarming pace, and the escalating threat of drought and desertification. Alarming statistics reveal that 8 percent of known animal breeds are extinct, with an additional 22 percent at risk of meeting the same fate.

Egypt is not immune to this crisis, as it grapples with the loss of biodiversity. Rapid urbanization, demographic shifts, overconsumption, and environmentally damaging technologies are driving 95 species of plants, insects, birds, and animals towards extinction. Combined with the effects of climate change, Egypt and our planet are being pushed to their limits.

Echoes of resilience

Within the confines of the Egyptian Pavilion, we paint a vivid picture of the challenges confronting our planet and the hopeful watermarks humanity is leaving behind within Egypt’s borders. We showcase signs of an uncertain future alongside glimpses of a better tomorrow, shaped by humans

The pavilion serves as a testament to Egypt’s commitment to ecological diversity, land management, and the integration of nature into urban settings. We envision a new symbiotic urban environment, one that strikes a balance between human habitation and nature’s thriving biodiversity.

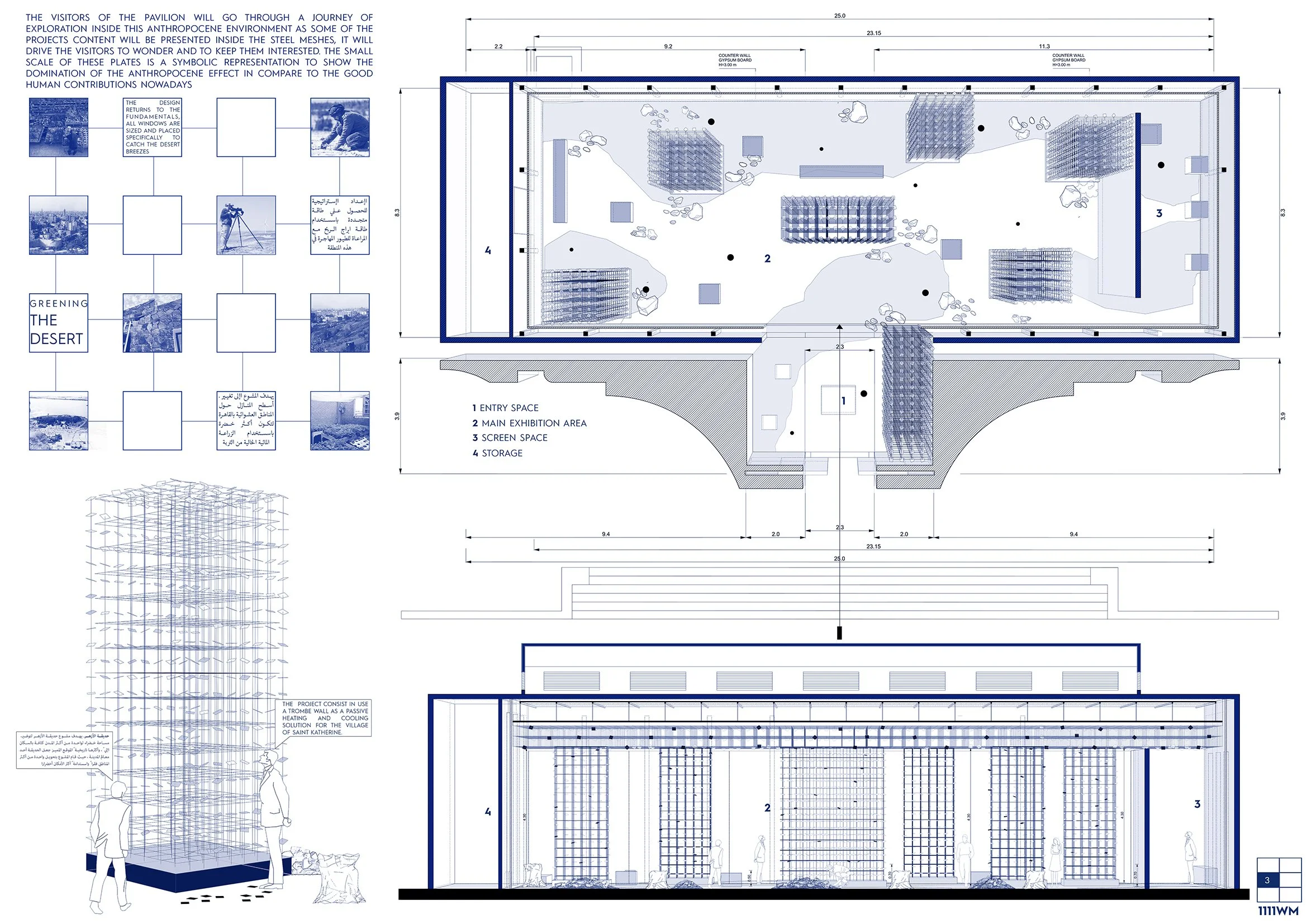
Our pavilion aims to underscore what’s at stake and how we can coexist and thrive together, preserving both humanity and biodiversity. Visitors embarking on this journey of exploration within the Anthropocene environment will encounter projects presented within steel meshes, designed to provoke wonder and engagement. These small-scale exhibits symbolize the dominance of the Anthropocene era in comparison to the positive contributions of contemporary humans.

Watermarks represent projects rooted in the implementation of clean and environmentally friendly technologies. These initiatives provide clean energy, minimize waste, and promote responsible use of natural resources, offering a direct response to the Anthropocene’s challenges.

We delve into case studies, examining how different places respond to the effects of Anthropocene-induced climate phenomena. These responses span conservation efforts to preserve natural habitats, adaptive reuse of industrial wastelands, and more. Each case study reflects a unique approach to designing for climate change, tailored to specific geographic locations and risks.

Nature’s fate, our choice

Egypt is witnessing a huge loss of its biodiversity, about 95 species of plants, insects, birds and animal are in danger of extinction due to the rapid urbanization that is taking over the agricultural lands, the demographic changes, over-consumption, and the use of technologies that damage the environment, now combined with climate change, are pushing our country and our planet to its limits.

In the egyptian pavlion we are showcasing the dangers that is facing our planet and the good watermarks that humanity is putting on earth facing this challenges reflected within the boundary of the egyptian land. Showing signs of the uncertain future or the better future based on people actions.

The pavilion is a showcase to the contributions aiming to the balance of ecological diversity in egypt, to control the expansion of the land, and to introduce nature into the city, creating a new symbiotic urban environment.

The pavilion aims to show what is in danger and how we can survive together humanity and biodiversity.

watermarks

Competition Panels

The following panels illustrate the project as it was first conceived during the competition phase, an initial synthesis of ideas, context, and narrative. They reveal the origins of the proposal and the foundational thinking that continues to inform its development.

Previous
Previous

Healing Terrace

Next
Next

Disclosed Heritage