Ground of Descent

Space for Contemporary Art and Culture – PARK ZONE 3

Burgas, Bulgaria

First Prize

2026-ongoing

The proposal is grounded in the powerful presence of the hole at the center of Burgas—a void that has existed for decades and has become deeply embedded in the city’s cultural memory and spatial identity. Rather than filling this absence, the project chooses to preserve and reinterpret it, transforming the hole into a public cultural landscape that reconnects the city to its own forgotten depth. The entire design is structured around three interdependent layers, each responding to the significance of the hole and its relationship to the surrounding urban fabric.

The Descent Reconnecting the City to the Hole

The first layer of the project reclaims the void not as an absence, but as a destination. What was once perceived as a gap in the urban fabric becomes an invitation — a civic descent embedded within the daily rhythm of Burgas.

From Troikata Square, the intervention begins with a geometrical garden that acts as a calibrated transitional field. This patterned landscape is neither park nor plaza alone; it is an urban mediator. Its ordered geometry echoes the existing formal axis of the city while subtly preparing visitors for a shift in elevation and atmosphere. The surface becomes directional — a textured carpet of movement that gathers, slows, and guides.

Embedded within this landscape, a wide and generous staircase system unfolds. Rather than a singular drop, the descent is gradual and ceremonial. Each step negotiates the transition from the everyday urban plane to the cultural layer below. The movement downward is not abrupt; it is spatially choreographed. As one descends, the city slowly reframes itself — facades rise in perspective, sounds soften, and the sky begins to act as a framed ceiling rather than an open expanse.

On the opposite edge, along San Stefano Boulevard, a second major descent establishes a counterpoint. This approach is more direct, urban in character, and embedded within the active street frontage. It draws pedestrians naturally toward the void, transforming a peripheral boundary into a threshold condition. What was once an edge becomes an entrance.

Together, these two systems operate as urban stitches. They reconnect fragmented movement patterns and weave the site back into the continuity of Burgas’ public life. The hole is no longer a leftover condition or an interruption in the city grid. It becomes a shared civic interior — a space of encounter, gathering, and cultural resonance.

Through descent, the project constructs belonging. The act of going down becomes symbolic: a collective movement toward memory, culture, and public life.

INHABITING THE VOID

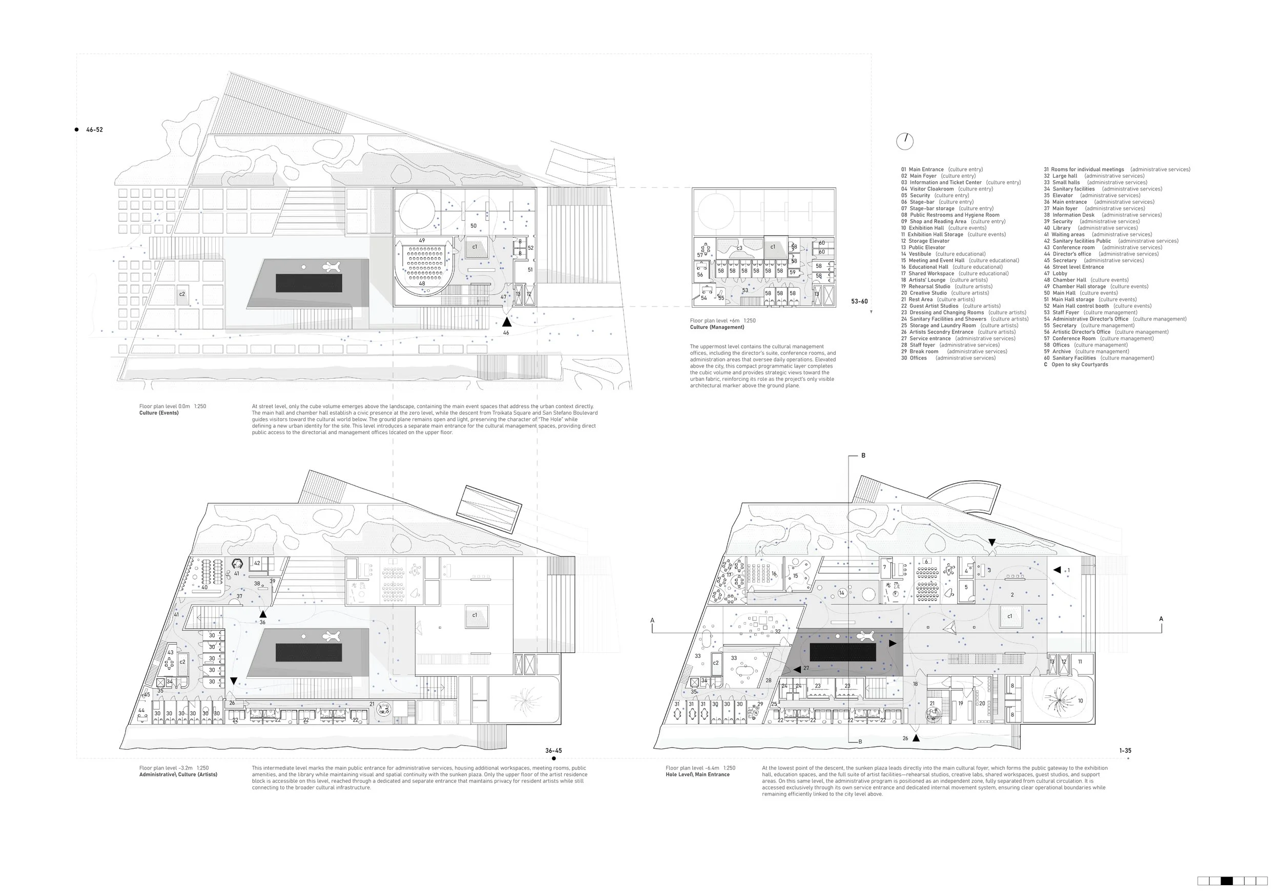
At the lowest level of the site, the cultural program is carefully embedded within the existing boundary of the hole — never exceeding its edge, never rising above the surrounding street level. The intervention does not attempt to dominate the void; it accepts its geometry, its limits, and its memory. In doing so, the full scale of the excavation remains legible. The ground continues to read as a continuous civic surface, while beneath it, a new spatial world unfolds.

The built volumes adopt a precise and restrained geometric configuration, shaped to remain entirely within the footprint of the excavation. Their form is not expressive for its own sake; it is calibrated to the perimeter of the terrain. Architecture becomes an instrument of containment, allowing the void to remain the protagonist.

Daylight penetrates deep into the interiors through carefully positioned light wells, sunken courtyards, and expansive glazed openings. These openings do not frame distant horizons — they frame earth. Exposed soil strata, vegetation, and the textured edges of the excavation become the primary visual references from within. The experience is not of being underground, but of inhabiting the terrain itself. The sky appears as a controlled aperture; the earth acts as enclosure.

Materially and spatially, the project embraces the atmospheric quality of being within the ground rather than beneath it. Light shifts across the walls of the excavation throughout the day, casting shadows that animate the surfaces and heighten the tactile presence of the soil. The void is no longer empty — it becomes a spatial chamber shaped by geology and time.

Importantly, only part of the hole is occupied by architecture. The remainder is preserved as an open, lower-level park directly connected to the cultural functions. This sheltered landscape offers a more intimate public realm — protected from wind, acoustically buffered from traffic, and spatially embraced by the surrounding earth. It becomes a flexible stage for gatherings, open-air exhibitions, performances, and informal encounters.

All cultural functions — exhibition halls, educational rooms, artists’ studios, and public amenities — are accessed naturally through the descending staircases and ramps that guide visitors from the city above into the heart of the site. Movement is intuitive. The act of descent is not merely circulation; it is the narrative spine of the project.

Here, architecture does not erase the hole. It completes it.

A Cultural Marker

The third architectural element is a compact cubic volume positioned along San Stefano Boulevard. With its controlled height and minimal footprint, it becomes the only structure that rises above ground level — a deliberate exception within an otherwise horizontal landscape. Its presence is restrained yet unmistakable: a precise geometric form that signals entry without competing with the void.

The cube does not dominate the skyline. Instead, it preserves the continuity of the flat urban horizon, allowing the ground plane to remain the primary civic surface. Its clarity anchors the project within the surrounding context, acting as a subtle urban marker visible from the boulevard and the adjacent public spaces.

Vertically, the volume operates as a connective hinge between city and excavation. A system of stairs and lifts links the street level to the cultural spaces below, creating seamless circulation between the visible and the embedded architecture. The transition from light to shadow, from exterior to interior, becomes compressed within this vertical movement — a spatial threshold between two worlds.

Inside, the cube contains the main exhibition hall, conceived as a tall, expressive volume. Unlike the horizontally embedded spaces within the hole, this hall rises upward, offering a contrasting spatial experience. It accommodates large-scale installations, immersive exhibitions, and public events within a single uninterrupted chamber. Natural light is carefully controlled, filtering from above or through calibrated openings, enhancing the verticality of the space while maintaining a contemplative atmosphere.

Above the exhibition level, the management offices are located at the top of the cube. From here, views extend across the city fabric and down into the sunken landscape, reinforcing the conceptual dialogue between surface and depth. Administration is physically connected to culture, yet elevated enough to maintain clarity of function.

The cube enhances the identity of the project without undermining the conceptual primacy of the hole. It is not the main gesture; it is the signal. A quiet landmark that marks the presence of culture, while allowing the ground itself to remain the true architectural protagonist.

A CULTURAL LANDSCAPE WITHIN THE EARTH

At the lowest level of the site, the primary cultural program is embedded entirely within the existing boundary of the hole, never exceeding its edge and never rising above street level. The intervention respects the original geometry of the excavation, allowing the void to remain fully legible in its scale and presence. Rather than filling the gap, the project activates it — transforming it into the central spatial stage of the entire composition.

The built volumes adopt a precise and disciplined geometric configuration, carefully shaped to remain within the limits of the terrain. Their forms are not imposed; they are calibrated. The architecture reads as a measured insertion, defined by the contour of the excavation itself. In this way, the hole remains the dominant spatial figure, while the architecture becomes its inhabitable layer.

Natural light penetrates deep into the interiors through light wells, sunken courtyards, and generous glazed openings. These apertures do not merely illuminate; they frame the exposed earth, vegetation, and the raw vertical surfaces of the excavation. From within, visitors experience a constant visual and material dialogue with the terrain. The sensation is not that of being underground, but of being embraced by the land — suspended between earth and sky.

This atmospheric condition is central to the project’s identity. The exposed soil walls become living facades that shift with light and shadow throughout the day. Seasonal changes alter the texture and color of the surrounding landscape, reinforcing the connection between interior cultural life and the natural ground that contains it.

Importantly, only a portion of the hole is occupied by architecture. The remaining area is preserved as a lower-level park — a sheltered civic garden directly connected to the cultural spaces. Protected from traffic and wind, this sunken landscape offers an intimate public realm for informal gatherings, outdoor exhibitions, performances, and community events. It acts as an extension of the interior program, dissolving the boundary between built and open space.

All cultural functions — exhibition halls, educational rooms, artists’ studios, and public areas — are accessed naturally through the descending staircases and ramps that lead from the city above into the heart of the site. Circulation is intuitive and continuous, reinforcing the narrative of descent that defines the project. Movement downward becomes both spatial and symbolic: a transition from the surface of the city into a collective cultural interior carved from the earth.

Here, the void is not erased. It is completed.

Main hall

The main hall is conceived as a single, uninterrupted volume with a clear internal height of 10 meters. Free from structural intrusion, it offers maximum spatial clarity and adaptability — a neutral yet powerful container capable of accommodating large-scale installations, immersive scenographies, performances, and civic gatherings.

Natural light enters from above through a carefully calibrated skylight system. The illumination is diffuse and controlled, washing the interior surfaces with an even glow that enhances the perception of height and spatial depth. The hall changes character throughout the day as light shifts, reinforcing its role as a living cultural chamber rather than a static enclosure.

Integrated within the architectural system is a concealed curtain mechanism that enables full blackout when required. This flexibility allows the space to transition seamlessly between open, daylight-driven exhibitions and fully controlled environments for performances, projections, and multimedia events. The hall can operate as a luminous gallery, a theatrical stage, or a civic forum — adapting to the evolving cultural life of the city.

The verticality of the space contrasts with the embedded horizontality of the surrounding architecture. While much of the project inhabits the terrain, the main hall rises as an interior landmark — a spatial void within the larger void. It is not defined by ornament or excess, but by proportion, light, and acoustic precision.

In this chamber, scale becomes experience.

Competition Panels

The following panels illustrate the project as it was first conceived during the competition phase, an initial synthesis of ideas, context, and narrative. They reveal the origins of the proposal and the foundational thinking that continues to inform its development.

Previous
Previous

Nature Within

Next
Next

Majlis House